90.000 €
Novità

Marsala

Rif. V7011A - La descrizione

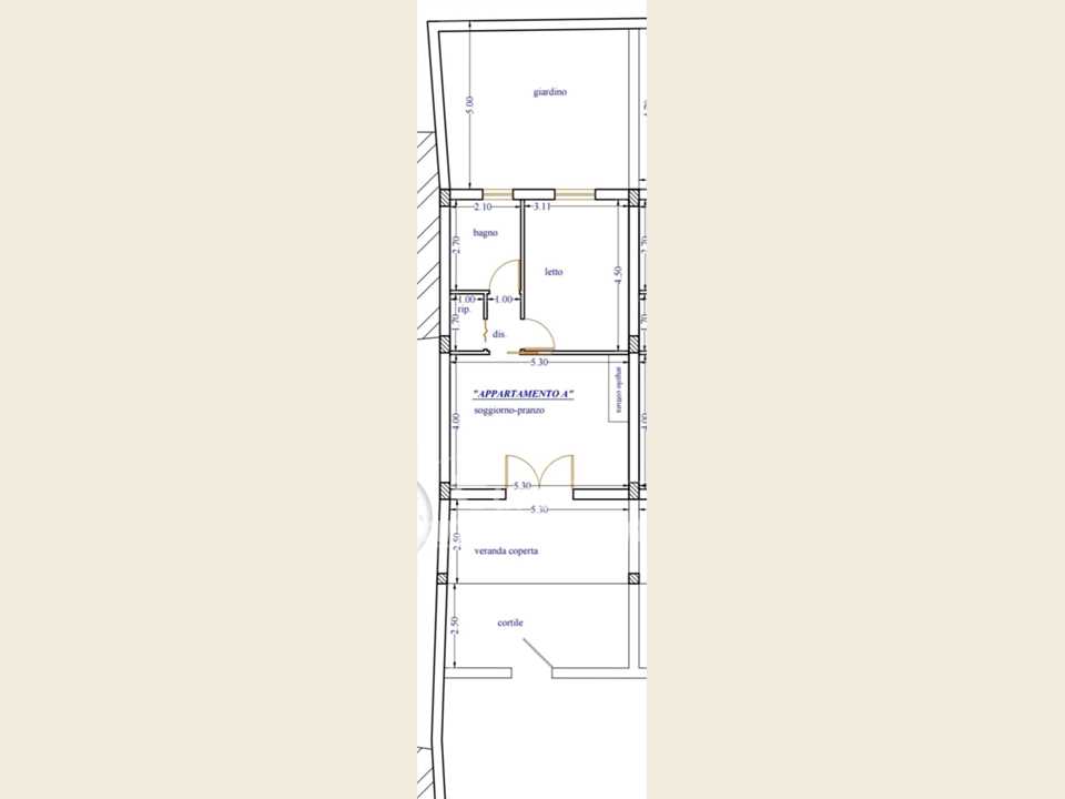
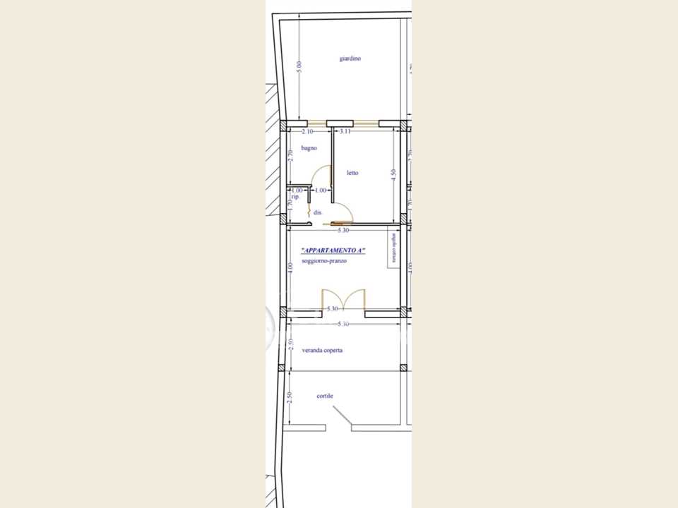
Appartamenti di nuova costruzione piano terra e piano primo di mq 50, composti da cucina-soggiorno, camera da letto, 1 servizio e ripostiglio.

Piano terra con veranda e spazio esterno.

Possibilità di acquistare tutto l'immobile insieme sia di piano terra e di piano primo. Il prezzo è di € 180.000,00

Zona Contrada Bambina

Caratteristiche

Vani3
Camere da letto1
Servizi1
Superficie utile50 mq
Veranda15 mq
Posti Auto1
Climatizzazione

Vi piacerà

  • Ottimo per investimento